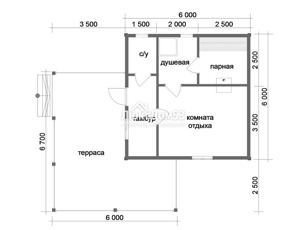
Проект Б-27

Проект Б-27
Одноэтажная баня 6х6м.
Цена бани из профилированного бруса “Без отделки”
Сечение бруса 90x140:
920 000 руб.
Сечение бруса 90x140, брус лежа:
1 050 000 руб.
Сечение бруса 140x140:
1 020 000 руб.
Сечение бруса 140x190:
1 155 000 руб.
Цена бани из профилированного бруса “Под ключ”
Сечение бруса 90x140:
1 415 000 руб.
Сечение бруса 90x140, брус лежа:
1 550 000 руб.
Сечение бруса 140x140:
1 520 000 руб.
Сечение бруса 140x190:
1 655 000 руб.
Цена бани в каркасном исполнении
Толщина стены 100 мм:
звоните
Толщина стены 150 мм:
звоните
Толщина стены 200 мм:
звоните

Фундамент 

Опорно-столбчатый .Из фундаментных блоков. Одна тумба состоит из 4-х блоков. Размер одного блока 20×20×40см. (Гарантия не распространяется).  Рассчитывается отдельно: свайно-винтовой, ж/б сваи, ленточный, плита.

Гидроизоляция Рубероид в двойном слое. Укладывается между фундаментом и обвязочным венцом.

Обвязочный венец естественной влажности. Антисептирование.

Брус не строганный сечение 100х150мм/150Х150мм/100х150мм брус лежа/150х200мм (1 сорт). В два ряда, для жёсткости лаг. На террасе второй ряд из доски 50х150мм

Лаги естественной влажности

Брус 50×150мм не строганный (1 сорт). Укладывается с шагом 60-65см.

Черновой пол естественной влажности. Антисептирование

Сплошной из обрезной доски 20-22мм (1сорт).

Сруб камерной сушки

Брус строганный профилированный сечение 140х90мм/ 140х140мм/ 140х90мм брус лежа/ 190х140мм. Прямой или овал на стоимость не влияет.

Межвенцовый утеплитель

Между венцами сруба прокладывается джут.

Углы сруба

Сборка углов сруба в шип-паз "теплый угол"

Усадка Опорные строганные столбы 100х150мм устанавливаются с компенсаторами усадки.

Перегородки камерной сушки

Брусовые, из строганного профилированного бруса 90×140мм. Толщина перегородок 90мм.

Сборка сруба

Производится на деревянные нагеля (березовые). Шаг не более 80см 

Высота сруба

2.30м 17 венцов бруса.

Фронтоны и карнизные свесы

Фронтоны с внешней стороны обшиваются имитацией бруса 17х140х6000мм, карнизные свесы обшиваются вагонкой 12х90х6000мм (камерной сушки,под фронтоны укладывается Ондутис Smart "А100 или аналог С ПРОКЛЕИВАЮЩЕЙ ЛЕНТОЙ!!!"). Ширина карнизного свеса 50см+/-.Во фронтоны дома монтируются вентиляционные решетки+дверька во фронтон в виде вентиляционной решотки.

Стропильная система естественной влажности

Стропильная система выполняется из  40×100/150мм.Обрешетка из обрезной доски 20-22мм (1 сорт), укладывается с шагом под профиль металлочерепицы.

Кровельное покрытие

Металлочерепица 0.45мм (цвет можно выбрать при заказе без доп.платы-красный,коричневый,зеленый,синий,серый,черный,графит,медно коричневый).Под кровлю укладывается Ондутис Smart "А100 или аналог С ПРОКЛЕИВАЮЩЕЙ ЛЕНТОЙ!!!" контр обрешотка из бруска 22х50мм. 

Фундамент 

Опорно-столбчатый из фундаментных блоков. Одна тумба состоит из 4-х блоков. Размер одного блока 20×20×40см. (Гарантия не распространяется). Расчитывается отдельно (свайно-винтовой, ж/б сваи, ленточный, плита)

Гидроизоляция Рубероид в двойном слое. Укладывается между фундаментом и обвязочным венцом.

Обвязочный венец естественной влажности. Антисептирование

Брус не строганный сечение 100х150мм/150х150мм/100х150мм брус лежа/150х200мм (1 сорт). В два ряда, для жёсткости лаг. На террасе второй ряд из доски 50х150мм

Лаги естественной влажности. Антисептирование

Брус 50×150мм не строганный (1 сорт). Укладывается с шагом 60-65см.

Черновой пол естественной влажности. Антисептирование

Сплошной из обрезной доски 20-22мм (1 сорт).

Чистовой пол камерной сушки

Строганная шпунтованная доска 28мм. Монтаж на оцинкованные саморезы,каждая 5-ая доска. На террасе полы из деревянной террасной доски хвоя, укладываются с зазором 5мм для стока воды. 

Сруб камерной сушки

 

Брус строганный профилированный сечение 140х90мм/ 140х140мм/ 140х90мм брус лежа/ 190х140мм. Прямой или овал на стоимость не влияет 

Межвенцовый утеплитель

Между венцами сруба прокладывается джут.

Углы сруба Сборка углов сруба в шип-паз "теплый угол"

Усадка 

Опорные строганные столбы 100х150мм устанавливаются с компенсаторами усадки.Оконные и дверные проемы сруба делаются чуть выше столярных изделий. Усадочный зазор заполняется мягким утеплителем и закрывается наличником.

Перегородки камерной сушки

Брусовые, из строганного профилированного бруса 90×140мм. Толщина перегородок 90мм.

Сборка сруба

Производится на деревянные  нагеля (березовые). Шаг не более 80см.

Высота сруба

2.38-2.30м 17 венцов бруса.

Утепление

100мм минеральной ватой Knauf: пол первого этажа и потолок.

Паро-гидро изоляция

Ондутис Smart "R70-A100 или аналог С ПРОКЛЕИВАЮЩЕЙ ЛЕНТОЙ!!!": пол первого этажа первый слой "А" второй слой "В", потолок на первом этаже "В".

Внутренняя отделка

Вагонка Euro хвоя, сорт «В» камерной сушки 12х90х6000мм: стены и перегородки,потолок первого этажа, кроме парного отделения. Плинтус и наличники Евро.

Для отделки используются оцинкованные гвозди 50мм

Парное отделение камерной сушки

Стены и потолок обшиваются осиновой вагонкой класса "А" с прокладкой высокотемпературной отражающей изоляции (фольги). Пологи класс А двухъярусные из строганной осиновой доски 27×90мм.

Печь <<Ермак 12 со стеклом>> с выносным баком для горячей воды. Емкость бака  60л (Ферум).

Вывод дымохода предусмотрен через крышу парного отделения (ДЫМОХОД ИЗ НЕРЖАВЕЙКИ!!!)

Обложка портала печи кирпичем. Все трубы 0.8мм

Моечное отделение

Проливные полы. 1-спиливаются лаги, 2-монтаж желоюа, 3-монтаж пленки класс А, 4-монтаж утеплителя 100мм, 5-монтаж пленки класс В+ OSB 9мм, 6-монтаж технониколя, 7-монтаж дополнительных лаг, 8-монтаж чистовых полов из строганной доски 36х90мм хвоя с зазором не более 5мм для стока воды.

Окна 

ПВХ двухкамерные с москитными сетками отливами и обсадной коробкой. Стандартный размер окна 1000х1000 в моечном отделении 500х500, в парное отделение 400х400 деревянное если предусмотрено проектом с фурнитурой (возможен другой размер по желанию заказчика). Кол-во и размер по проекту.(В оконные проемы впиливаются ройки)

Двери 

Входная металлическая утепленная с замком  (Россия). Межкомнатные филенчатые с обсадной коробкой без фурнитуры. В парное отделение стеклянная матовая с фурнитурой.(В дверные проемы впиливаются ройки)

Терраса (если предусмотрена проектом)

Ограждение из плоских фигурных балясин. На террасе полы из деревянной террасной доски , укладываются с зазором 5мм для стока воды. 

Фронтоны и карнизные свесы

Фронтоны с внешней стороны обшиваются имитацией бруса 17х140х6000мм, карнизные свесы обшиваются вагонкой 12х90х6000мм(камерной сушки,под фронтоны укладывается Ондутис Smart "А100 или аналог С ПРОКЛЕИВАЮЩЕЙ ЛЕНТОЙ!!!"). Ширина карнизного свеса 50см+/-.Во фронтоны дома монтируются вентиляционные решетки+дверька во фронтон в виде вентиляционной решотки.

Стропильная система естественной влажности

Стропильная система выполняется из бруса 40×100/150мм (1 сорт).Обрешетка из обрезной доски 20-22мм (1 сорт), укладывается с шагом под профиль металлочерепицы.

Кровельное покрытие

Металлочерепица 0.45мм (цвет можно выбрать при заказе без доп.платы-красный,коричневый,зелёный,синий,серый,черный,графит,медно коричневый ).Под кровлю укладывается Ондутис Smart "А100 или аналог С ПРОКЛЕИВАЮЩЕЙ ЛЕНТОЙ!!!" контр обрешотка из бруска 22х50мм. 

Фундамент

Опорно-столбчатый.
Из фундаментных блоков. Одна тумба состоит из 4-х блоков. Размер одного блока 20×20×40см. (Гарантия не распространяется). Расчитывается отдельно (свайно-винтовой, ж/б сваи, ленточный, плита)

Гидроизоляция Рубероид в двойном слое. Укладывается между фундаментом и обвязочным венцом.

Обвязочный венец. Антисептирование.

Брус не строганный сечение 100х150мм/150х150мм/200х200мм (1 сорт). В два ряда, для жёсткости лаг. На террасе второй ряд из доски 50х150/200мм

Лаги. Антисептирование

Брус 50×150/200мм не строганный (1 сорт). Укладывается с шагом 60-65см.

Черновой пол. Антисептирование

Первого этажа сплошной из обрезной доски 20-22мм (1 сорт).

Чистовой пол камерной сушки

Первого этажа строганная шпунтованная доска 28мм. Монтаж на оцинкованные саморезы,каждая 5-ая доска. На террасе полы из деревянной террасной доски хвоя, укладываются с зазором 5мм для стока воды. 

Каркас стен 1-го этажа

камерной сушки

Стойки из бруса 40×100мм (1 сорт).
Промежуточные и угловые стойки из бруса 40×150мм (1 сорт). Собирается каркас (стойки) из бруса 40×100 мм (1 сорт). Стойки каркаса устанавливаются через 59см, используются раскосы и ригель брус 40×100мм (1 сорт).

Стойки из бруса 40×150мм (1 сорт).
Промежуточные и угловые стойки из бруса 40×150мм (1 сорт).Собирается каркас (стойки) из бруса 40×150 мм (1 сорт). Стойки каркаса устанавливаются через 59см, используются раскосы и ригель брус 40×100мм (1 сорт).
 

Стойки из бруса 40х200мм (1 сорт). Промежуточные и угловые стойки из бруса 40х200мм (1 сорт).Собирается каркас (стойки) из бруса 40х200мм (1 сорт). Стойки каркаса устанавливаются через 59см, используются раскосы и ригель брус 40х100мм (1 сорт)

 

Перегородки камерной сушки

Каркасные, утепленные 100мм Rockwool лайт баттс скандик. Толщиной 12-14см.
Каркас перегородок из бруса 40×100мм (1 сорт).

Высота этажа

Первого этажа 2.20м в чистоте.

Утепление

100мм Rockwool лайт баттс скандик:стены первого этажа, фронтоны

100мм минеральной ватой Knauf: пол первого этажа,перекрытие между первым и мансардным этажом, стены и потолок мансардного этажа.

100мм Rockwool лайт баттс скандик: перегородки

150мм Rockwool лайт баттс скандик:стены первого этажа, фронтоны

150мм минеральной ватой Knauf:пол первого этажа, стены и потолок мансардного этажа.

100мм минеральной ватой Knauf: перекрытие между первым и мансардным этажом

100мм Rockwool лайт баттс скандик: перегородки

200мм Rockwool лайт баттс скандик : стены первого этажа, фронтоны

200мм минеральной ватой Knauf: пол первго этажа, стены и потолок мансардного этажа.

100мм минеральной ватой Knauf: перекрытие между первым и мансардным этажом

100мм Rockwool лайт баттс скандик: перегородки

Паро-гидро изоляция

Ондутис Smart "R70-A100 или аналог С ПРОКЛЕИВАЮЩЕЙ ЛЕНТОЙ!!!" : пол первого этажа первый слой "А" второй слой "В", стены первого этажа и фронтоны с внешней стороны "А" с внутренней стороны "В" (фронтоны с внутренней стороны без пленки)

Внутренняя отделка

Вагонка Euro хвоя, сорт «В» камерной сушки 12х90х6000мм: стены и потолок первого этажа, кроме парного отделения. Плинтус и наличники Евро.

Для отделки используются оцинкованные гвозди 50мм 

Парное отделение камерной сушки

Стены и потолок обшиваются осиновой вагонкой класса "А" с прокладкой высокотемпературной отражающей изоляции (фольги). Пологи класс "А" двухъярусные из строганной осиновой доски 27×90мм.

Печь <<Ермак 12 со стеклом>> с выносным баком для горячей воды. Емкость бака 60л (Ферум).

Вывод дымохода предусмотрен через крышу парного отделения (ДЫМОХОД ИЗ НЕРЖАВЕЙКИ!!!).

Обложка портала печи кирпичем. Все трубы 0.8мм

Моечные отделение Проливные полы. 1-спиливаются лаги, 2-монтаж желоюа, 3-монтаж пленки класс А, 4-монтаж утеплителя 100мм, 5-монтаж пленки класс В+ OSB 9мм, 6-монтаж технониколя, 7-монтаж дополнительных лаг, 8-монтаж чистовых полов из строганной доски 36х90мм хвоя с зазором не более 5мм для стока воды.
Внешняя отделка Вагонка сорт <<В>> камерной сушки 16х90х6000мм:стены первого этажа,фронтоны. Отделочный материал монтируется с технологическим зазором 2см через контррейку. 

Окна 

ПВХ двухкамерные с москитными сетками отливами и обсадной коробкой. Стандартный размер окна 1000х1000 в моечном отделении 500х500, в парном отделение 400х400 деревянное если предусмотрено проектом с фурнитурой (возможен другой размер по желанию заказчика). Кол-во и размер по проекту.

Двери

Входная металлическая утепленная с замком   (Россия). Межкомнатные филенчатые с обсадной коробкой без фурнитуры.В парное отделение стеклянная матовая с фурнитурой.

Терраса (если предусмотрены проектом)

Ограждение из плоских фигурных балясин.На террасе полы из деревянной террасной доски хвоя , укладываются с зазором 5мм для стока воды. 

Фронтоны и карнизные свесы

Фронтоны с внешней стороны обшиваются имитацией бруса 17х140х6000мм на фронтоны монтируется контр обрешотка из бруска 22х50мм, карнизные свесы обшиваются вагонкой 12х90х6000мм (камерной сушки,под фронтоны укладывается Ондутис Smart "А100 или аналог С ПРОКЛЕИВАЮЩЕЙ ЛЕНТОЙ!!!"). Ширина карнизного свеса 50см+/-.Во фронтоны дома монтируются вентиляционные решетки+дверька во фронтон в виде вентиляционной решотки.

Стропильная система камерной сушки

Стропильная система выполняется из бруса 40×100/150/200мм (1 сорт).
Обрешетка из обрезной доски 20-22мм, укладывается с шагом под профиль металлочерепицы.

Кровельное покрытие

Металлочерепица 0.45мм (цвет можно выбрать при заказе без доп.платы - красный,коричневый,зеленый,синий,серый черный,графит,медно коричневый).Под кровлю укладывается Ондутис Smart "А100 или аналог С ПРОКЛЕИВАЮЩЕЙ ЛЕНТОЙ!!!" контр обрешотка из бруска 22х50мм. 

Наименование

Цена

1

Фундамент свайно-винтовой
Стандартная свая 2.5м d-108мм

6000 руб за 1шт.
С монтажом

2

Дополнительная перегородка из профилированного бруса 100×150 мм

Рассчитывается отдельно

3

Шпунтовка дверных и оконных проемов сруба «ройки»

Входят в стоимость проекта

4

Сборка сруба на деревянные нагеля

Входит в стоимость проекта

5

Дополнительный обвязочный венец из бруса 100×150мм

Рассчитывается отдельно

6

Дополнительный обвязочный венец из бруса 150×150мм

Рассчитывается отдельно

7

Дополнительный обвязочный венец из бруса 150×200мм

Рассчитывается отдельно

8

Дополнительный слой утеплительного материала Knauf (толщиной в 50 мм)

Рассчитывается отдельно

9

Устройство подкровельной паро-гидроизоляции Изоспан

Рассчитывается отдельно

10

Дополнительный паро-гидроизоляционный слой Изоспан

Рассчитывается отдельно

11

Матица для усиления потолочных балок строганная с 4-х сторон 100×150 мм

5 000 руб.

12

Матица для усиления потолочных балок строганная с 4-х сторон 150×150 мм

7 000 руб.

13

Матица для усиления потолочных балок строганная с 4-х сторон 150×200 мм

10 000 руб.

14

Двухскатную крышу на любом проекте можно заменить на ломаную.
Пример: ломаная крыша для дома или бани 6×6м — 30 000 руб.

Рассчитывается отдельно

15

Обработка огне био защитой нижнего венца дома и половых лаг

Рассчитывается отдельно

16

Водосточные системы

Рассчитывается отдельно

17

Обработка наружных стен строения защитным пинотексом (расходный материал заказчика)

Рассчитывается отдельно

18

Дополнительно окно 1.0×1.2м деревянное

6 000 руб.

19

Дополнительная филенчатая дверь 800×2000м

6 000 руб.

20

Веранда 6×2 м (обшивается вагонкой с внешней стороны), без утепления

Расчитывается отдельно

21

Веранда 6×2 м (обшивается вагонкой с внешней стороны), утеплена isover 50мм

Расчитывается отдельно 

22

Крыльцо 1×1 м

Расчитывается отдельно 

23

Крыльцо 1,5×2 м

Расчитывается отдельно 

24

Терраса открытого типа 6×2 м

Расчитывается отдельно 

25

Туалет каркасно-щитового типа 1×1,2 м

15 000 руб.

26

Бытовка 2×3м для проживания бригады строителей
Если нет возможности предоставить жилье бригаде на время строительства

25 000 руб.

27

Аренда бензогенератора на срок строительства
Топливо для генератора оплачивает заказчик

20 000 руб.

28

Дополнительный обвязочный венец

Ращитывается отдельно

29

Вывести дымоход (сендвич) через перекрытие для одноэтажной бани

Входит в стоимость проекта 

30

Вывести дымоход (сендвич) через перекрытие для двухэтажной бани

Входит в стоимость проекта 

31

Замена половой шпунтованной доски с 28мм на 36мм

Расчитывается отдельно

32

Дополнительный обвязочный венец

Расчитывается отдельно

33

Замена рулонного утеплителя на теплоизоляционные плиты Rockwool

Расчитывается отдельно

34

Установко декаротивных столбов на лестнице

3 000 руб. за шт

35

Замена меж венцового утепления джут на холофайдер

Расчитывается отдельно 

36

Замена вагонки на фронтоне с внешней стороны на блок-хаус или имитацию бруса

Расчитывается отдельно

37

Увеличить высоту сруба на один или несколько венцов

Расчитывается отдельно

38

Замена кровли на металлочерепицу. Выбор цвета по RAL

Рассчитывается отдельно

39

В любой проект дома можно разместить сауну
Стандартный размер сауны 2×2м

От 50 000 руб.

40

Замена вагонки класса «В» на класс «А»

Рассчитывается отдельно

41

Дополнительно каркасно-щитовая перегородка 1м

Расчитывается отдельно 

42

Дополнительно брусовая перегородка 1м

Расчитывается отдельно 

43

Замена брусовых перегород 90×140мм на 140×140мм

Рассчитывается отдельно

44

Увеличить высоту мансардного этажа

Рассчитывается отдельно

45

Замена плоских балясин на точеные (круглые)

300 руб. за шт.

46

Замена филенчатой двери на ПВХ

15 000 руб.

47

Замена деревянного окна 1.0×1.2м на ПВХ (двухкамерное)

8 000 руб.

48

Замена деревянного окна 1.0×1.2м на ПВХ (однокамерное)

7 000 руб.

49

Дополнительно окно 0.6×0.6м деревянное

4 000 руб.

50

Дополнительно тумбочка для опорно-столбчатого фундамента
Из 4-х фундаментных блоков 20×20×40см

2 000 руб.

51

Фундамент ленточный из фундаментных блоков. Высота 40см, ширина 20см.

Расчитывается отдельно 

52

Фундамент ленточный, армированный

Расчитывается отдельно 

53

Выбрать другую печь для своей бани можно в разделе «Печи для бани»
Возможно отказаться от нашей печи и приобрести свою

по запросу

 

 

 

Задать вопрос по проекту или оформить заказ