Проект К-96

Проект К-96
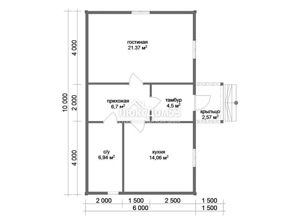
Одноэтажный дом 10х6м
Цена дома в каркасном исполнении
Толщина стены 100 мм:
1 310 000 руб.
Толщина стены 150 мм:
1 375 000 руб.
Толщина стены 200 мм:
1 460 000 руб.

Фундамент *

Опорно-столбчатый.
Из фундаментных блоков. Одна тумба состоит из 
4-х блоков. Размер одного блока 20×20×40см. (Гарантия не распространяется). Расчитывается отдельно (свайно-винтовой, ж/б сваи, ленточный, плита)

Гидроизоляция

Рубероид в двойном слое. Укладывается между фундаментом и обвязочным венцом.

Обвязочный венец  Антисептирование

Брус не строганный сечение 100х150мм/150х150мм/200х200мм (1 сорт). В два ряда, для жёсткости лаг. На террасе второй ряд из доски 50х150/200мм

Лаги. Антисептирование

Брус 50×150/200мм не строганный (1 сорт). Укладывается с шагом 60-70см.

Черновой пол. Антисептирование

Первого этажа сплошной из обрезной доски 20-22мм (1 сорт).

Чистовой пол принудительной сушки

Первого этажа строганная шпунтованная доска 28мм (Quick Deck 16мм на выбор).

Монтаж на оцинкованные саморезы, каждая 5-ая доска.На террасе полы из террасной доски , укладываются с зазором 5мм для стока воды.  

Каркас стен 1-го этажа "камерной сушки"

Стойки из бруса 40×100мм (1 сорт).
Промежуточные и угловые стойки из бруса 40×100мм (1 сорт). Собирается каркас (стойки) из бруса 40×100 мм (1 сорт). Стойки каркаса устанавливаются через 59см, используются раскосы и ригель брус 40×100мм (1 сорт).

Стойки из бруса 40×150мм (1 сорт).
Промежуточные и угловые стойки из бруса 40×150мм (1 сорт).Собирается каркас (стойки) из бруса 40×150 мм (1 сорт). Стойки каркаса устанавливаются через 59см, используются раскосы и ригель брус 40×100мм (1 сорт).

Стойки из бруса 40х200мм (1 сорт).

Промежуточные и угловые стойки из бруса 40х200мм ( 1сорт).Собирается каркас (стойки) из бруса 40х200мм (1 сорт).Стойки каркаса устанавливаются через 59см, используются раскосы и ригель брус 40х100мм (1сорт).

Перегородки "камерная сушка"

Каркасные, утепленные 100мм Rockwool лайт баттс скандик. Толщиной 12-14см.
Каркас перегородок из бруса 40×100мм (1 сорт).

Высота этажей

Первого этажа 2.3-2.35м.

Утепление

100мм Rockwool лайт баттс скандик: стены первого этажа.

100мм минеральной ватой Knauf: пол первого этажа и потолок.

100мм Rockwool лайт баттс скандик: перегородки

150мм Rockwool лайт баттс скандик: стены первого этажа.

150мм минеральной ватой Knauf: пол первого этажа, потолок первого этажа. 

100мм Rockwool лайт баттс скандик: перегородки

200мм Rockwool лайт баттс скандик: стены первого этажа.

200мм минеральной ватой Knauf: пол первого этажа, потолок первого этажа.

100мм Rockwool лайт баттс скандик: перегородки

Паро-гидро изоляция

Ондутис Smart "R70-A100 или аналог С ПРОКЛЕИВАЮЩЕЙ ЛЕНТОЙ!!!" : пол первого этажа первый слой "А" второй слой "В" стены первого этажа с внешней стороны "А" с внутренней "В", потолок первого этажа "В"

Внутренняя отделка

Вагонка Euro хвоя, сорт «В» принудительной сушки 12х90х6000мм: стены и потолок первого этажа, перегородки первого этажа.
Плинтус и наличники Евро.
Для отделки используются оцинкованные гвозди 50мм

Внешняя отделка

Вагонка сорт «В» принудительной сушки 16х90х6000мм: стены первого этажа, фронтоны. Отделочный материал монтируется с технологическим зазором 2см через контррейку. 

Окна **

Деревянные, с двойным остеклением и обсадной коробкой. Стандартный размер окна 1.0×1.2м. с фурнитурой (возможен другой размер по желанию заказчика). Кол-во и размер по проекту.

Двери ***

Входная металлическая утепленная с замком  (Россия). Межкомнатные филенчатые с обсадной коробкой без фурнитуры.

Терраса (если предусмотрены проектом)

Ограждение из плоских фигурных балясин.На террасе полы из террасной доски , укладываются с зазором 5мм для стока воды. 

Фронтоны и карнизные свесы

Фронтоны с внешней стороны обшиваются вагонкой 16х90х6000мм на фронтоны монтируется контр обрешотка из бруска 22х50мм, карнизные свесы обшиваются вагонкой 12х90х6000мм  (принудительной сушки,под фронтоны укладывается Ондутис Smart "А100 или аналог С ПРОКЛЕИВАЮЩЕЙ ЛЕНТОЙ!!!"). Ширина карнизного свеса 30см.Во фронтоны дома монтируются вентиляционные решетки.

Стропильная система "камерной сушки"

Стропильная система выполняется из бруса 40×100/150/200мм (1 сорт).
Обрешетка из обрезной доски 20-22мм, укладывается с шагом не более 300мм.

Кровельное покрытие

Ондулин (цвет можно выбрать при заказе без доп.платы-красный,коричневый,зеленый).Под кровлю укладывается Ондутис Smart "А100 или аналог С ПРОКЛЕИВАЮЩЕЙ ЛЕНТОЙ!!!" контр обрешотка из бруска 22х50мм. 

 

Наименование

Цена

1

Фундамент свайно-винтовой
Стандартная свая 2.5м d-108мм

6000 руб за 1шт.
С монтажом

2

Дополнительная перегородка из профилированного бруса 100×150 мм

Рассчитывается отдельно

3

Шпунтовка дверных и оконных проемов сруба «ройки»

Входят в стоимость проекта

4

Сборка сруба на деревянные нагеля

Входит в стоимость проекта

5

Дополнительный обвязочный венец из бруса 100×150мм

Рассчитывается отдельно

6

Дополнительный обвязочный венец из бруса 150×150мм

Рассчитывается отдельно

7

Дополнительный обвязочный венец из бруса 150×200мм

Рассчитывается отдельно

8

Дополнительный слой утеплительного материала Knauf (толщиной в 50 мм)

Рассчитывается отдельно

9

Устройство подкровельной паро-гидроизоляции Изоспан

Рассчитывается отдельно

10

Дополнительный паро-гидроизоляционный слой Изоспан

Рассчитывается отдельно

11

Матица для усиления потолочных балок строганная с 4-х сторон 100×150 мм

5 000 руб.

12

Матица для усиления потолочных балок строганная с 4-х сторон 150×150 мм

7 000 руб.

13

Матица для усиления потолочных балок строганная с 4-х сторон 150×200 мм

10 000 руб.

14

Двухскатную крышу на любом проекте можно заменить на ломаную.
Пример: ломаная крыша для дома или бани 6×6м — 30 000 руб.

Рассчитывается отдельно

15

Обработка огне био защитой нижнего венца дома и половых лаг

Рассчитывается отдельно

16

Водосточные системы

Рассчитывается отдельно

17

Обработка наружных стен строения защитным пинотексом (расходный материал заказчика)

Рассчитывается отдельно

18

Дополнительно окно 1.0×1.2м деревянное

6 000 руб.

19

Дополнительная филенчатая дверь 800×2000м

6 000 руб.

20

Веранда 6×2 м (обшивается вагонкой с внешней стороны), без утепления

Расчитывается отдельно

21

Веранда 6×2 м (обшивается вагонкой с внешней стороны), утеплена isover 50мм

Расчитывается отдельно 

22

Крыльцо 1×1 м

Расчитывается отдельно 

23

Крыльцо 1,5×2 м

Расчитывается отдельно 

24

Терраса открытого типа 6×2 м

Расчитывается отдельно 

25

Туалет каркасно-щитового типа 1×1,2 м

15 000 руб.

26

Бытовка 2×3м для проживания бригады строителей
Если нет возможности предоставить жилье бригаде на время строительства

25 000 руб.

27

Аренда бензогенератора на срок строительства
Топливо для генератора оплачивает заказчик

20 000 руб.

28

Дополнительный обвязочный венец

Ращитывается отдельно

29

Вывести дымоход (сендвич) через перекрытие для одноэтажной бани

Входит в стоимость проекта 

30

Вывести дымоход (сендвич) через перекрытие для двухэтажной бани

Входит в стоимость проекта 

31

Замена половой шпунтованной доски с 28мм на 36мм

Расчитывается отдельно

32

Дополнительный обвязочный венец

Расчитывается отдельно

33

Замена рулонного утеплителя на теплоизоляционные плиты Rockwool

Расчитывается отдельно

34

Установко декаротивных столбов на лестнице

3 000 руб. за шт

35

Замена меж венцового утепления джут на холофайдер

Расчитывается отдельно 

36

Замена вагонки на фронтоне с внешней стороны на блок-хаус или имитацию бруса

Расчитывается отдельно

37

Увеличить высоту сруба на один или несколько венцов

Расчитывается отдельно

38

Замена кровли на металлочерепицу. Выбор цвета по RAL

Рассчитывается отдельно

39

В любой проект дома можно разместить сауну
Стандартный размер сауны 2×2м

От 50 000 руб.

40

Замена вагонки класса «В» на класс «А»

Рассчитывается отдельно

41

Дополнительно каркасно-щитовая перегородка 1м

Расчитывается отдельно 

42

Дополнительно брусовая перегородка 1м

Расчитывается отдельно 

43

Замена брусовых перегород 90×140мм на 140×140мм

Рассчитывается отдельно

44

Увеличить высоту мансардного этажа

Рассчитывается отдельно

45

Замена плоских балясин на точеные (круглые)

300 руб. за шт.

46

Замена филенчатой двери на ПВХ

15 000 руб.

47

Замена деревянного окна 1.0×1.2м на ПВХ (двухкамерное)

8 000 руб.

48

Замена деревянного окна 1.0×1.2м на ПВХ (однокамерное)

7 000 руб.

49

Дополнительно окно 0.6×0.6м деревянное

4 000 руб.

50

Дополнительно тумбочка для опорно-столбчатого фундамента
Из 4-х фундаментных блоков 20×20×40см

2 000 руб.

51

Фундамент ленточный из фундаментных блоков. Высота 40см, ширина 20см.

Расчитывается отдельно 

52

Фундамент ленточный, армированный

Расчитывается отдельно 

53

Выбрать другую печь для своей бани можно в разделе «Печи для бани»
Возможно отказаться от нашей печи и приобрести свою

по запросу

 

 

 

Задать вопрос по проекту или оформить заказ

Каркасные дома под ключ

Каркасные дома под ключ – распространенный заказ среди покупателей. Каркасный дом представляет собой строение, в основе которого – несущий каркас из бруса или металла. Изнутри конструкция оснащена утеплительными материалами. 

Каркасный дом строится на любом фундаменте. Основа дома – каркас. Последний собирается из различных пиломатериалов. Иногда для такого дома используют металлические материалы. Пустоты стен закладываются минеральной ватой, пенополистиролом и другими утеплительными материалами. Дополнительно дом отделывают материалами, которые будут защищать его от влажности.

На каркас дома монтируют стеновые материалы: цементно-стружечные панели, ОСБ плиты и другие. Финальный этап строительства – обработка стен дома штукатуркой, сайдингом и т.п. 

Разновидности каркасных домов

  • деревянные
  • металлические
  • комбинированные

Первый тип – самый недорогой. Минусы деревянного каркаса – в плохой сопротивляемости влаге, уязвимости к вредителям и низкой пожароустойчивости. Эти недостатки можно компенсировать, если обрабатывать дом специальными составами для защиты.

На сегодняшний день строители предлагают каркасные дома под ключ в СПб в двух вариантах: из легкого оцинкованного металлического профиля и тяжелого черного металла. Первый тип даже легче, чем деревянный каркас, но значительно дороже его. Дом из оцинкованной стали обладает хорошей огнестойкостью, его не будут трогать вредители. Однако это строение сложнее возвести, процесс строительства достаточно длительный. Каркасные дома из тяжелых профилей строят редко, так как это сложно и затратно.

Заказать каркасные дома под ключ в вы можете в нашей компании “Люкс Дом 53”. Каркасные дома под ключ в СПб от наших специалистов порадуют высоким качеством и разумной ценой.